Featured collection
How We Build
BUILD YOUR FUTURE WITH THE PERFECT FRAME
Cold Formed Steel Framing
BUILD YOUR FUTURE WITH THE PERFECT FRAME
Cold Formed Steel Framing
Build your dream space effortlessly with our DIY Steel Frame System. Designed for easy assembly on your concrete slab, it allows flexibility for your finishing touches.
Note: Pricing excludes doors, windows, electrical, plumbing, and finishes, but the steel frame includes allowances for all essential elements.
RECLAIM YOUR BUSINESS
Commercial & Industrial Uses
RECLAIM YOUR BUSINESS
Commercial & Industrial Uses
We design industrial and commercial spaces for entrepreneurs and manufacturers, including customized distribution centers for e-commerce brands using prefabricated models.
A HOUSE IS NOT A HOME
Destination Oasis
A HOUSE IS NOT A HOME
Destination Oasis
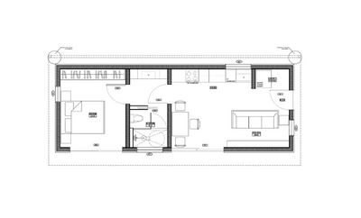
An ADU is a life-altering game-changer in the housing market. PREFAB1 offers a variety of pre-designed and customizable homes that fit your budget and lifestyle. Our plans range from garage conversions to multi-bedroom homes. We find refuge so that we can build the home of your dreams.
Nationwide, a housing crisis looms, particularly evident in California's cities where soaring rent and mortgage costs crush dreams. In response, California enacted ADU-friendly legislation to facilitate affordable housing. We contribute to community well-being by creating durable, customizable, and affordable neighborhood complexes.
Embrace the ADU lifestyle - Design your dream.
Your questions, answered.
Prefab ADUs, or accessory dwelling units, are cost-effective living spaces built in a factory and transported to your property. Unlike traditional home construction, prefab ADUs save on labor and materials, making them more affordable.
Yes, prefab ADUs are designed for both small and large lots. They come in various sizes and styles, ensuring there's an option that fits your property and budget.
Prefab ADUs are more affordable due to streamlined construction processes. Prices start at $50,000, varying based on size, style, and selected features.
- Affordability: Lower costs compared to traditional homes.
- Sustainability: Often built with eco-friendly materials and methods.
- Eco-friendliness: Increased energy efficiency compared to traditional homes.
- Customization: Tailored to meet specific needs and budget.
- Fast Installation: Can be set up in weeks rather than months or years.
The installation of prefab ADUs from Prefab1 typically takes a matter of weeks. Factors affecting the timeline include the chosen model's complexity, customization options, and site preparation.
Yes, Prefab1 offers a variety of customization options. You can choose features, amenities, and styles to ensure your prefab ADU complements the aesthetics of your existing home. Options include various finishes, colors, and architectural details to suit your preferences.





