Blog

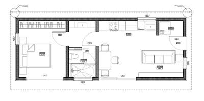
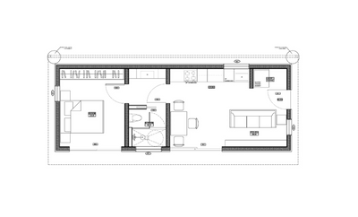
The $50,000 ADU vs. The $105,000 ADU: Understanding the Cost...
Why the massive price difference in modern prefab ADU listings? This post delivers total cost transparency, clarifying the gap between the $50,000 DIY prefab home kit (structure only) and the $105,000+ turnkey unit. Learn how Prefab1, the best ADU company, uses durable steel frame ADU construction to give you quality and cost control, whether you buy the kit or choose our full installation services.

Case Study: Rapid Deployment of a Modular Fitness Center - P...
Stop losing revenue to slow construction. Prefab1 offers high-performance modular commercial construction for custom prefabricated shopping centers and prefab office solutions. Built with durable Cold Formed Steel, we guarantee shorter timelines, fixed costs, and maximum durability, securing your revenue and protecting your capital investment.

Welcome to Prefab1, where we are engineering the future of f...
Discover Prefab1: the best ADU company providing luxury prefab homes built with ultra-durable Cold Formed Steel framing. We offer the fastest path to ownership by giving you the choice to purchase a DIY kit or opt for our seamless professional installation services. Start building your resilient, income-generating steel frame ADU today on Prefab1.com or The Home Depot.

Built to Last: How Prefab1’s Steel Frames Withstand Earthqua...
Investing in a modern prefab ADU requires resilience. Learn why Prefab1 is the best ADU company for safety: our steel frame ADU structures, built with Cold Formed Steel, are engineered to be earthquake-resistant prefab and typhoon-proof construction, securing your durable prefab home investment and providing peace of mind against the elements.

Beyond 'No Permit Required': The True Legalities of ...
Don't fall for the "No Permit Required" myth. This post exposes the true legalities of prefab ADU installation and confirms why a habitable unit always requires permits. Learn how choosing Prefab1, the best ADU company, guarantees a durable prefab home built with steel frame ADU plans, ensuring full compliance, insurability, and maximum ROI on your investment.

The Next Big Thing in Logistics: Custom Prefabricated Distri...
Accelerate your supply chain. Prefab1 offers high-performance modular commercial construction for custom prefabricated distribution centers and prefab warehouse solutions. Built with durable Cold Formed Steel, our systems guarantee a faster commercial building timeline, cost predictability, and superior resilience against pests and fire, ensuring maximum ROI for e-commerce and logistics brands.