Welcome to Prefab1, where we are engineering the future of fast, reliable, and sustainable building. - Prefab1

Welcome to Prefab1, where we are engineering the future of fast, reliable, and sustainable building. - Prefab1

As a leading prefab ADU, our core mission is simple: to provide you with the fastest path to ownership and property expansion through superior modular construction.
The Modern Prefab ADU Advantage
In today's challenging housing market, adding an Accessory Dwelling Unit (ADU) to your property is the smartest financial decision you can make. It’s the simplest way to generate passive income, create a dedicated guest suite, or build a high-quality home office.
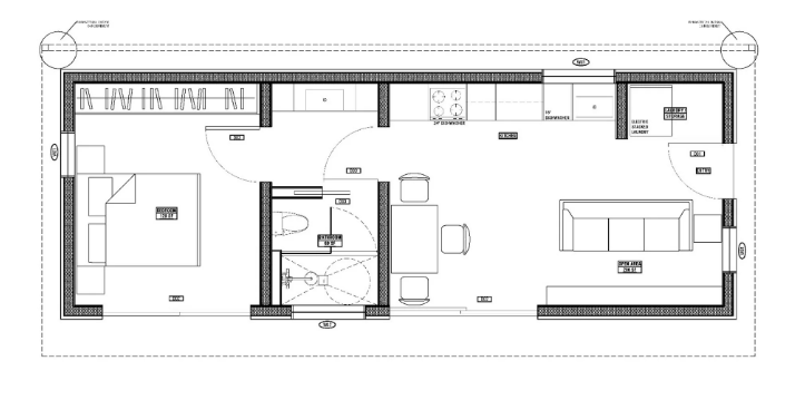
At Prefab1, we stand apart as the best ADU company because of our foundation: Cold Formed Steel (CFS) Framing. Every one of our steel frame ADU models, from our 360 sq. ft. luxury prefab homes to our spacious modern designs, is built for ultimate resilience. This durable prefab home construction is non-combustible and immune to pests, rot, and mold, providing you with a truly secure, low-maintenance investment for the long term.
Find Your Prefab1 Solution Today: Sale or Installed
We are committed to making our high-quality, durable prefab homes accessible and easy to build. When you purchase from Prefab1, you have options: you can buy the DIY prefab home kit for self-assembly or arrange for our full professional installation services for a completely hands-off experience.
You can explore our full range of models and request custom commercial quotes directly here on Prefab1.com. For homeowner convenience, many of our steel frame ADU kits and select modular units are also available for trusted purchasing through The Home Depot online.
James Hoseini
Call: (949)201-9066
Email: sales@projectprefab.com
Address: 19761 Bahama st, Northridge, CA 91324